BERSAGLI

I bersagli che vengono normalmente utilizzati nelle gare di tiro dinamico sono :

Bersagli I.P.S.C. di carta o cartone

Bersagli metallici (reattivi)

Picture

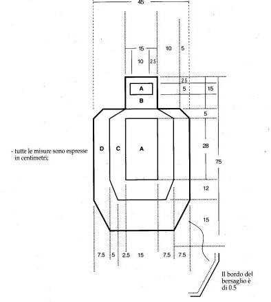
Bersaglio in Cartone I.P.S.C.

Picture

Tab. 1

Questa � l�attribuzione dei punti che vengono assegnati sul bersaglio a seconda della zona della sagoma colpita

I bersagli metallici per essere validamente conteggiati devono sempre cadere o ribaltarsi, se colpiti in maniera corretta, e devono essere progettati in modo da non permettere la loro rotazione di spigolo o laterale.

Questa silhouette metallica si chiama PEPPER POPPER U.S.A.

Picture

Come si Calcola il Fattore di Potenza o Power Factor

Nelle gare di tiro dinamico il fattore di potenza o �Power Factor� � determinante per l�attribuzione del conteggio dei punti. Devono essere perci� previste due categorie di potenza denominate �MAJOR� e �MINOR�. Se il fattore e� uguale o maggiore di 175 sara� major, se il fattore sar� uguale o maggiore di 125 sara� minor.

Come viene calcolato il P.F. ?

Si misura in grani il peso della palla che si sta utilizzando. esempio 200 grani (palla in lega per un calibro 40SW)

Si misura con un cronografo la velocit� della palla. esempio 887 piedi al secondo

Si applica la seguente formula :

peso della palla espressa in grani�� X�� velocita� della palla in� f.p.s. (piedi al secondo)

------------------------------------------------------------------------------------------------------

������������������������������������������������������� 1000

200 grani x 887 f.p.s. / 1000 = F.P. 177,4

Il� Power Factor � maggiore di 175 pertanto il munizionamento nell�esempio risulta essere MAJOR e di conseguenza i punti sul bersaglio� sono calcolati come nella tabella 1

Se la velocit� fosse stata di 828 piedi al secondo si avrebbe un F.P. = 165,6 e pertanto la categoria di appartenenza sarebbe stata MINOR.

Picture